Salve a tutti, è un po che non bazzico questo forum per vari motivi....ma adesso che mi sono trasferito mi trovo l'opportunità di costruirmi una stanza dedicata al cinema.
Allora il posto che mi trovo a disposizione è un sottogarage attualmente diviso da pareti in legno dove c era una sala prove e una stanza usata a magazzino domestico. Stavo valutando l'idea di non modificare le paretti ma di sfruttarle cosi come sono anche se nutro forti dubbi selle misure delle stanze,
attualmente ho un impianto 7.1 con 4 monitor 50, un CS1 e 2 monitor 30 della polk audio è un vecchio onkyo 605 come reparto audio mentre per il video ho un vecchio lg 42pollici hd Ready e un sony hw 10 come video proiettore. Tutto questo ora è imballato nella mia vecchia casa (casa dei miei) e prima di pensare di trasferire è montare il tutto volevo un parere di chi ha molta più esperienza di me su la struttura che volevo andare a creare.
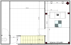
Questa è la planimetria:

Cosa ne pensate?
Allora il posto che mi trovo a disposizione è un sottogarage attualmente diviso da pareti in legno dove c era una sala prove e una stanza usata a magazzino domestico. Stavo valutando l'idea di non modificare le paretti ma di sfruttarle cosi come sono anche se nutro forti dubbi selle misure delle stanze,
attualmente ho un impianto 7.1 con 4 monitor 50, un CS1 e 2 monitor 30 della polk audio è un vecchio onkyo 605 come reparto audio mentre per il video ho un vecchio lg 42pollici hd Ready e un sony hw 10 come video proiettore. Tutto questo ora è imballato nella mia vecchia casa (casa dei miei) e prima di pensare di trasferire è montare il tutto volevo un parere di chi ha molta più esperienza di me su la struttura che volevo andare a creare.
Questa è la planimetria:

Cosa ne pensate?